- 賃料
- 50.82万円
- 店舗・事務所
- 坪単価
- 1.21万円
- 敷金
- 6ヶ月
|
|
|
|
| 所在地 | 大阪府寝屋川市香里南之町 協栄観光ビル |
|---|---|
| 交通 | 京阪本線香里園駅 徒歩1分 |
| 築年月 | 2011/01 | 新築/中古 | 中古 |
|---|---|---|---|
| 面積 | 138.85m² | 計測方式 | |
| バルコニー | m² | 向き | |
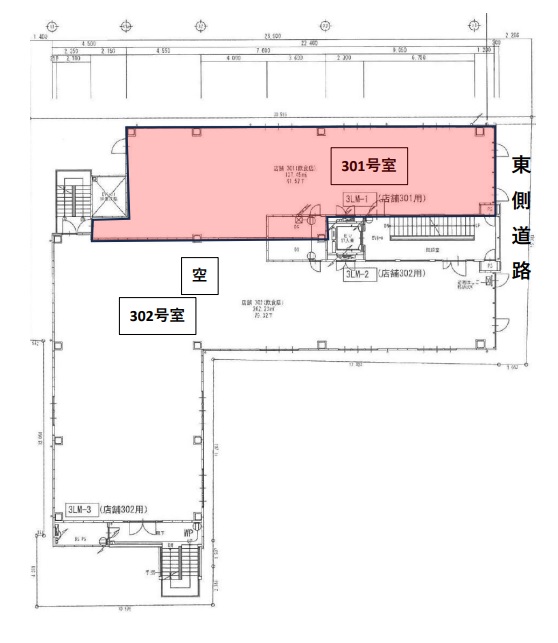
| 建物階数 | 地上4階 | 部屋階数 | 3階 |
| 部屋/区画番号 | 301 | 総戸/区画数 | |
| 建物構造 | 鉄骨造 | ||
| 間取内容 | 約42坪 |
||
| 駐車場 | 取引態様 | 仲介 | |
| 引渡/入居時期 | 相談 2026/03 | 現況 | 賃貸中 |
| 周辺環境 | |||
| 設備・条件 | 事務所可 都市ガス エレベータ 敷金解約引…20%引。 飲食店不可。 駐輪場、バイク置場無。 香里ダイエー本通商店街会費が必要です。 屋上塔屋看板使用可能(別途看板料要)。 火災保険、賃貸保証会社加入要。 家賃に別途消費税がかかります。 | ||
| 物件番号 | J161-038D1-003-301 | 掲載期限日 | 2026/06/15 |
| 自社物 | 先物 | 状態 | |
香里園駅徒歩1分♪
2026年3月退居予定!
内装はスケルトンです☆
1F飲食店、2F飲食店、4Fネイルサロン営業中♪
業種などお気軽にお問い合わせくださいませ。
Loading...
所在地
※物件掲載内容と現況に相違がある場合は現況を優先と致します。







